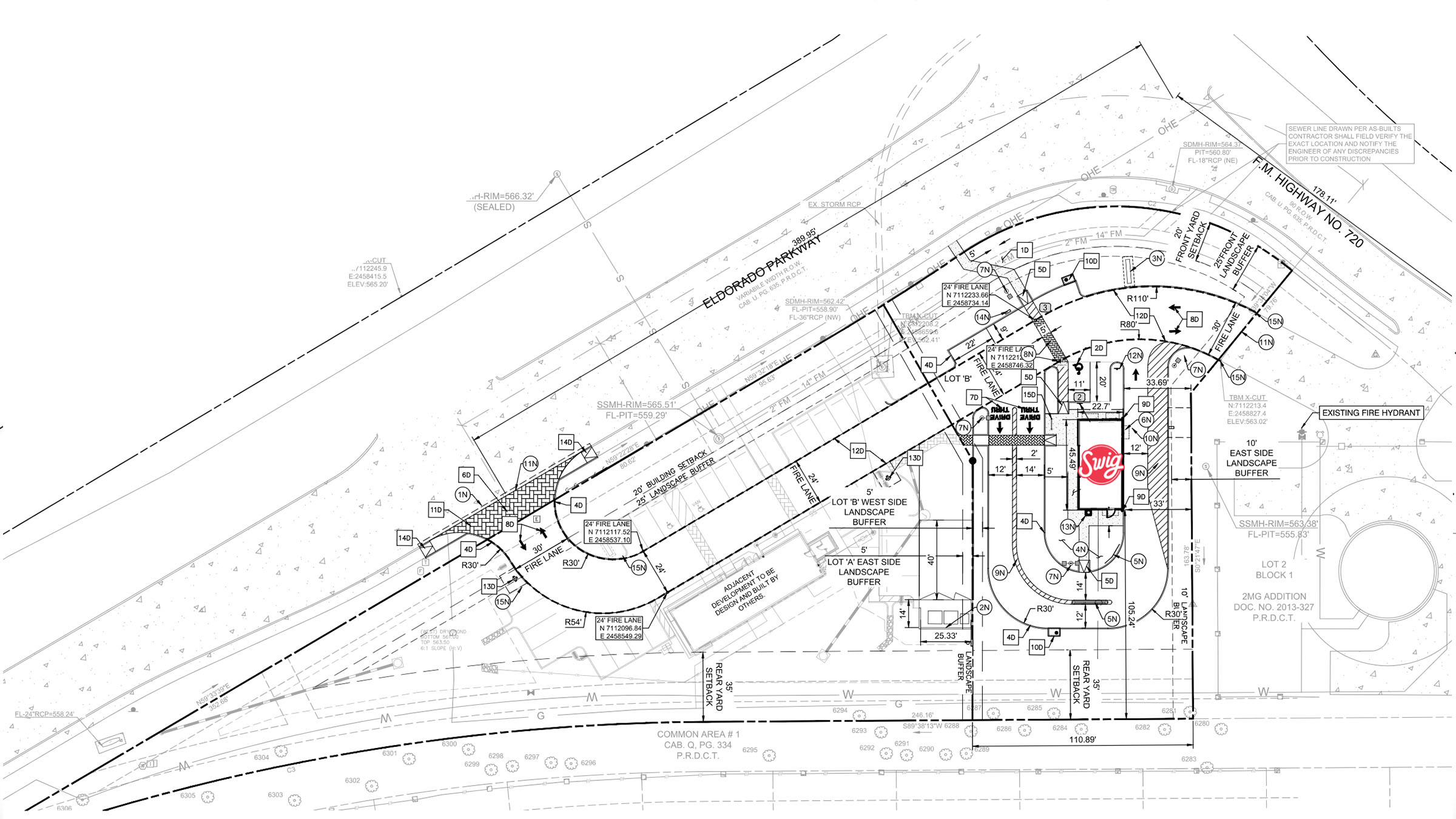
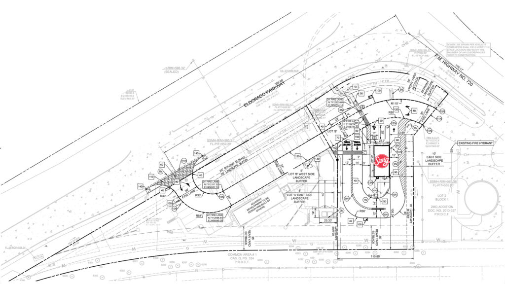
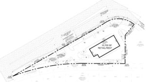
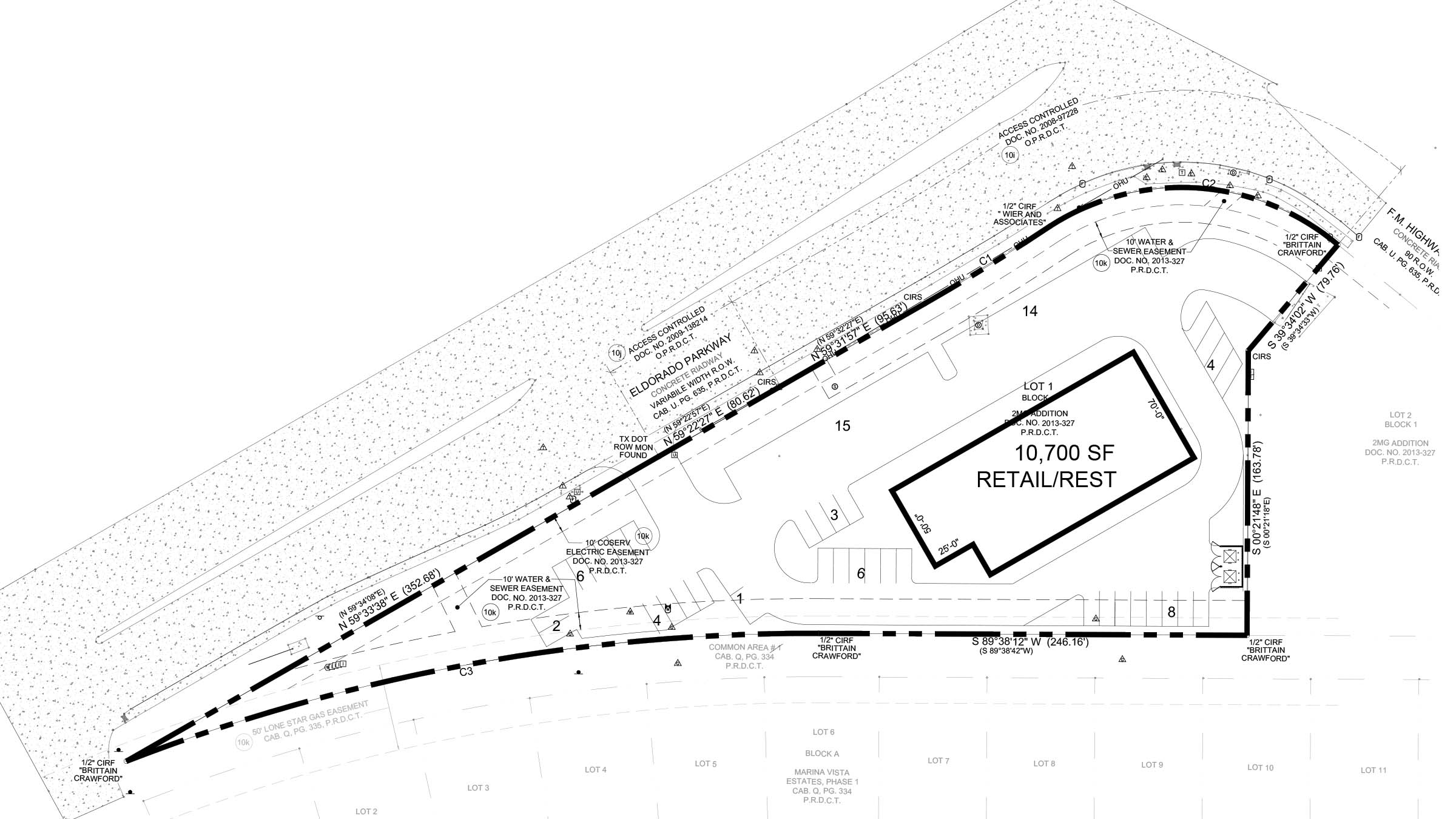
• For sale or Lease
• Lot Size: +/- 1.92 AC
• Call for pricing
AREA RETAIL: Kroger, Walmart, Lowe’s, Hobby Lobby, Sprouts, ALDI, Applebee’s, McDonald’s, Taco Bell, Smoothie King, Arby’s and more…
*2019, 24-hr bi-directional counts
• • •
As Founding Partner of BBMG, Raphael unites branding, sustainability and innovation to help organizations create sustainable growth and positive impact in the world.
An expert in brand strategy, public affairs and social innovation, Raphael is a passionate champion for a new approach to branding that’s driven by empathy, collaboration, shared values and mutual relationships.

He has directed branding and marketing programs for clients such as AWAY Travel, CLIF Bar, Eileen Fisher, Estée Lauder Companies, Johnson & Johnson, MAC Cosmetics, Macy’s, Inc., Nike, Nespresso, Target, The North Face and Walmart. He has also worked with many leading nonprofits including ASPCA, Education Reimagined, Giffords, OceanX, PBS, Rainforest Alliance and Urban Teachers, as well as the Arthur M. Blank Family Foundation, Einhorn Collaborative, Ford Foundation, Kresge Foundation and the Robert Wood Johnson Foundation.
Raphael has an extensive background in political communications, getting his start as a press aide to Texas Governor Ann W. Richards. He also served as communications director for Texas State Senator Rodney Ellis (D-Houston) and as press secretary for U.S. Congressman Lloyd Doggett (D-Austin).
Raphael received his BA in Philosophy with honors from the University of Texas at Austin. He currently serves as an adjunct professor of marketing and communications at the NYU Stern School of Business, and he sits on the advisory boards of Sustainable Brands, the NYU Stern Center for Sustainable Business and Earth Guardians.
• • •
Greg Lindsay is an urban tech fellow at Cornell Tech’s Jacobs Institute, where he explores AI and augmented reality (AR) at city scale. He is also a senior fellow of MIT’s Future Urban Collectives Lab, a senior advisor to Climate Alpha, and a non-resident senior fellow of the Atlantic Council’s Scowcroft Strategy Initiative.

He’s advised organizations such as Intel, Samsung, IKEA, Starbucks, Audi, Hyundai, Tishman Speyer, André Balazs Properties, Emaar, and Expo 2020, along with numerous G20 government entities. He was previously the urbanist-in-residence at URBAN-X — BMW MINI’s urban tech accelerator — the director of applied research at NewCities, and founding director of strategy at its mobility-focused offshoot CoMotion.
He speaks frequently about cities, mobility, innovation, and globalization, including appearances at 10 Downing Street, the United States Military Academy, Sandia National Laboratories, the OECD, Harvard Business School, the MIT Media Lab, and the Aspen Ideas Festival. He’s been cited as an expert on the future of cities, technology, and mobility by The New York Times, The Washington Post, The Wall Street Journal, The Guardian, USA Today, CNN, NPR, and the BBC. He is co-author of the 2011 critically acclaimed international bestseller Aerotropolis: The Way We’ll Live Next.
Greg is a two-time Jeopardy! champion (and the only human to go undefeated against IBM’s Watson).
• • •
Ross heads up RBA, where he transitioned from private equity to the creative side of the business finding his passion creating Work That Wins™ for notable clients such as Golden Chick, CBRE, JLL, TAC Air, Swiss American, Southern Land Company, Harwood, TopGolf, FanDuel, and more.

Outside of the office, Ross spends time with his family, practices martial arts and Tai Chi, takes photos, flies drones, plays video games, and travels the world.
• • •
Case Kenny is an entrepreneur, mindfulness expert, host and founder of the top 25 Apple podcast New Mindset, Who Dis. Beloved by some of today’s biggest celebrities including Hailey Bieber, Viola Davis, Sophia Bush, John Cena, and Lucy Hale and featured on Good Morning America, you might recognize him from his viral coffee cup and post-it quotes on Instagram, which have been shared by millions and featured by The Today Show, Complex, Forbes, Women’s Health, Cosmopolitan, and many more.

Created in 2018, Kenny’s podcast New Mindset, Who Dis features his short, no-B.S.take on all things mindfulness in a relatable way, empowering people to be happier and live more fulfilling lives by changing their mindsets in all areas of life spanning from self worth + empowerment to dating + relationships, career advice and more. The podcast has received over 6,000 5-star reviews and accolades such as Spotify Editor’s Choice, iHeart Radio Top 10 Health, Deezer and Stitcher Radio Editor’s Choice and others, and has held a position as a top 25 podcast on both the Apple Podcasts and Spotify charts for the past 3 years.
As part of the podcast, Kenny also produces special “music x mindfulness” episodes, where he collaborates with top artists + DJs including Martin Garrix, Gryffin, Two Friends, Cheat Codes, Frank Walker + Sam Feldt to bring mindfulness to life in an energizing and unique way for listeners.
Kenny is also the creator of the best-selling mindfulness journals The New Mindset Journal, But First, Inner Peace, Unbothered and Single Is Your Superpower, and digital journals including Closure and Clarity. He is also the author of That’s Bold of You.
Listen to New Mindset, Who Dis on all streaming platforms or visit newmindsetwhodis.com for more.
For the latest news and information, follow Case Kenny on Instagram @case.kenny.
• • •
Rod Santomassimo is the founder and president of the Massimo Group, CRE Perform, and CRE Investor. Coach.
The Massimo Group is the world’s #1 commercial real estate broker coaching organization, assisting over 4,200 CRE professionals in building the businesses and lives they desire.
The author of four best-selling books – Brokers Who Dominate, Teams Built to Dominate, and Knowing Isn’t Doing, which became America’s #1 sales book when it launched. His most recent book, Dominators of Commercial Real Estate Brokerage

A graduate of Washington and Lee University, Rod earned his MBA from the Fuqua School of Business at Duke University, where he is a two-time recipient of the Duke University Fuqua School of Business Impact Alumni of the Year Award; Globe St. has also designated him as a “Best Boss” in CRE.
Rod has been published and/or featured in several general business periodicals, including but not limited to Entrepreneur.com, The Good Men Project, Thrive Global, and the New York Real Estate Journal. In addition, he is CCIM and a patented inventor.
Rod has recently been recognized as the “CREAI Guy” as he has shifted his focus to integrating artificial intelligence to accelerate CRE brokerage success within Massimo’s coaching programs.
• • •
Rand Stagen is the CEO of the Stagen Leadership Academy. Established in 1999, the Academy trains leaders from across North America who are committed to long-term personal development and using their organizational platforms for positive impact. Prior to founding Stagen, Rand was a co-founder and Group Publisher of Presido Media, a publisher of newspapers and magazines in the Southwest.

A passionate advocate for elevating humanity through business, he is a co-founder and global board member of Conscious Capitalism. Rand is also a board member of the Institute for Cultural Evolution, a think tank developing solutions to overcome the hyper polarization that threatens American democracy. A sought-after resource within YPO, he has been delivering programs at the chapter, regional, and international level (including multiple Global Leadership Conferences) for almost two decades. He lives in Dallas with his wife and two daughters.
7800 Windrose Ave., Plano, TX 75024
A culinary and entertainment destination inspired by the local community. At Legacy Food Hall, you won’t just find a little bit of everything. You’ll find a lot of everything. Celebrated local chefs and restaurateurs source the highest quality ingredients for more than 20 eateries and multiple craft bars. With carefully curated menus inspired by cultures from around the globe, it’s a culinary experience that’s out of this world. Shake things up with a stirring array of craft cocktails and delicious libations. Sip and savor at two large cocktail bars, an intimate wine bar, and an award-winning craft brewery that can make any hour a happy one. Legacy Food Hall may be called a food hall, but the menu doesn’t stop there. It’s almost too easy to find yourself drawn into the Lexus Box Garden for live bands, sporting events, dancing, movies, and more. It literally sets the stage for an incredible experience.
2927 Maple Ave, Dallas, TX 75201
Evoke the era of glamorous travel at our hotel in Dallas, where classic style and modern elegance are juxtaposed in a chic Uptown location. Our historic, 1923 Art Deco building and Uptown Dallas hotel suites are steps from business, museums, boutique shopping, cutting-edge cuisine, and stimulating nightlife. Our onsite Perle on Maple Restaurant serves innovative dishes that showcase inspiring cuisine with a distinctive Texas twist. Dallas meetings and events are hosted with flair in 7,000 square feet of ballroom venues in Dallas, TX, including Dorothy Draper-designed spaces. Each of our 176 guest rooms and suites feature warm cinnabar-and-charcoal color palettes, modern amenities, custom mahogany, and marble-topped furniture. In your downtime, relax at our outdoor pool.
3033 Fairmount St, Dallas, TX 75201
The Marriott Dallas Uptown offers personalized service, thoughtful amenities and an unbeatable location less than two miles from the Dallas Arts District. Walk from our hotel to trendy restaurants and the scenic Katy Trail, Dallas’s most active biking and pedestrian trail. We’re also close to over five million square feet of Dallas’s best office space. Love Field Airport and Dallas/Fort Worth International Airport are within easy reach. Recharge in our rooftop outdoor pool and fully equipped fitness center before indulging in delicious cuisine at our chic restaurant and bar. Unwind after a busy day in Dallas in thoughtfully designed hotel rooms and suites offering plush bedding and homelike perks. Host a meeting in one of our six event venues, which feature advanced audiovisual technology, or plan an unforgettable event on our 14th-floor rooftop event space with 360-degree views of Dallas.